PROJETO DE ARQUITETURA E INTERIORES
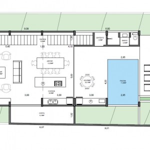
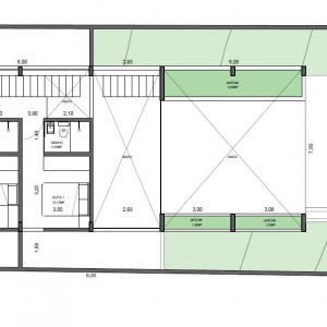
Projeto de Arquitetura e Interiores para uma Residencia unifamiliar localizada no Condomínio Aruã Brisas na cidade de Mogi das Cruzes – SP.
Dados da Obra:
Projeto: 2018;
Obra: Em andamento;
Área Construída: 250,00m².
Autores:
Frederico Zanelato e Sergio Faraulo.










