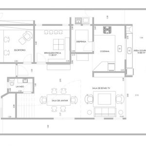
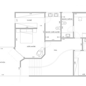
PROJETO DE ARQUITETURA E INTERIORES
Projeto de arquitetura e interiores para a reforma de uma Residência unifamiliar localizada na condomínio Veredas em Mogi das Cruzes – SP.
Dados da Obra:
Projeto: 2021;
Obra: Em andamento;
Área Construída: 283,65m².
Autores:
Frederico Zanelato e Sergio Faraulo.


































