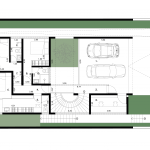
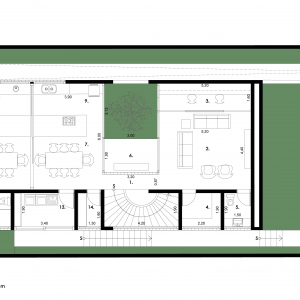
PROJETO DE ARQUITETURA E INTERIORES
Projeto de arquitetura e interiores para a uma Residência unifamiliar localizada na condomínio Mosaico Essence em Mogi das Cruzes – SP.
Dados da Obra:
Projeto: 2021;
Obra: Em andamento;
Área Construída: 240,60m².
Autores:
Frederico Zanelato e Sergio Faraulo.




















