PROJETO DE ARQUITETURA E INTERIORES
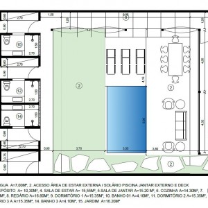
Projeto de Arquitetura e Interiores para uma Residencia Unifamiliar localizada no condomínio Outeiro das Brisas na Praia do Espelho em Porto Seguro – BA.
Dados da Obra:
Projeto: 2019;
Obra: Em andamento;
Área Construída: 150,00m².
Autores:
Frederico Zanelato e Sergio Faraulo.


















