PROJETO DE ARQUITETURA, INTERIORES E IDENTIDADE VISUAL
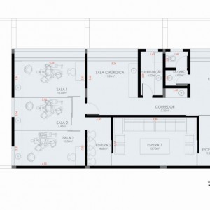
Projeto de arquitetura, interiores e identidade visual para uma clínica odontológica localizada na cidade de Mogi das Cruzes – SP.
Dados da Obra:
Projeto: 2017;
Obra: Em andamento;
Área Construída: 288,40m².
Autores:
Frederico Zanelato e Sergio Faraulo.





