PROJETO DE ARQUITETURA E INTERIORES
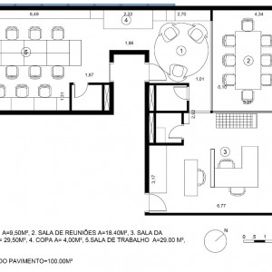
Projeto de arquitetura e interiores para um escritório corporativo localizado no Helbor Patteo Mogilar – Sky Mall & Office em Mogi das Cruzes – SP.
Dados da Obra:
Projeto: 2019;
Obra: 2020;
Área Construída: 100,00m².
Autores:
Frederico Zanelato e Sergio Faraulo.
Fotos:
Rita Bonanata.
























