PROJETO DE ARQUITETURA, INTERIORES E IDENTIDADE VISUAL
O projeto de arquitetura, interiores e identidade visual desenvolvido para os antigos laboratórios do Colégio São Francisco Xavier foi pensado para ser um espaço de aprendizagem, criação e inovação (learning space). O seu layout foi ordenado de maneira livre para que o ambiente se transformasse em função das atividades a que foram destinadas, apresentando também a possibilidade de fácil adaptação para futuros usos de acordo com as novas necessidades dos usuários.
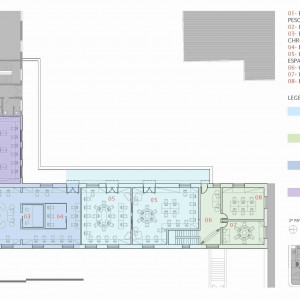
O mobiliário é disposto em toda a sua extremidade por mesas fixas, armários / lousas que servem como uma espécie de “recurseria”, um recinto onde pode ser armazenado sucatas, madeiras, recicláveis e diversos outros materiais de uso de alunos e professores durante os processos de criação. Estes armários também foram projetados para guardar e carregar os dispositivos eletrônicos, tais como notebooks, impressoras, scanners, etc. Por apresentar um centro livre e tomadas penduradas, o mobiliário móvel facilita a mutação e agrupamento dos usuários caso haja necessidade, resguardados a menor probabilidade de falta de energia.
No que diz respeito às cadeiras, as mesmas ajudam a criar um ambiente descolado, contemporâneo e jovem, o que contrapõe com as cores neutras das paredes, pisos e demais mobílias. Já os armários e mesas compostos por cores claras, formica tipo lousa e revestimento em OSB (material derivado da madeira constituído por pequenas lascas orientadas em camadas cruzadas) remete ao espaço a ideia do reuso e de sustentabilidade.
Quanto ao piso, o material vinílico foi escolhido devido aos inúmeros benefícios que apresenta, como por exemplo a alta resistência de tráfego, antiderrapante, antialérgico, antichamas e incomparável absorção acústica, além de fácil limpeza. Seu desenho exclusivo foi pensado para compor a identidade visual da intervenção.
Outro aspecto que merece destaque está facilmente perceptível nas paredes que receberam uma pintura especial na qual proporciona a essas superfícies a possibilidade de serem grandes lousas.
Por fim, a diretriz da proposta é que os alunos sejam os protagonistas, coloquem a mão na massa e aprendam fazendo, mesclando robótica, programação de tecnologias digitais e desfrutem o máximo destes makerspaces. De forma divertida e envolvente, os alunos desenvolverão a sua criatividade, pensamento crítico e trabalho em equipe.
Dados da Obra:
Projeto: 2016;
Obra: Em andamento;
Área Construída: 591,20m².
Autores: Sergio Faraulo e Frederico Zanelato.
Conselheira:
Beatriz Goulart.























