Casa Alves, Granja Viana, Cotia – SP.
Uma casa contemporânea com técnica construtiva inovadora e sustentável para um casal jovem com dois filhos, família grande e muitos amigos. Uma casa integrada com as visuais externas, aconchegante, aberta onde precisa ser, intimista na medida do conforto com resultado harmonioso.
As visuais do lote foram as maiores inspirações para este projeto, com uma vista para uma mata nativa, fizemos algumas conversas com os proprietários em baixo de uma árvore, sentindo a atmosfera deliciosa do local…
A casa foi construída em steel frame, foi a primeira que fizemos. Trabalhar com uma nova tecnologia foi desafiador, passamos dois dias visitando fabricas na região e conversamos durante todo o processo sobre materiais novos, tecnologias, soluções, sustentabilidade e conforto.
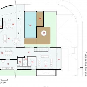
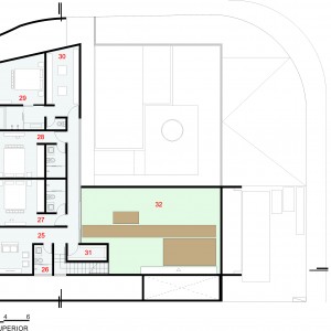
O lote em aclive foi estudado minunciosamente de maneira a ser melhor explorado, suas vocações, vistas, insolação e ventilação verificados, estudados e desvendados… no primeiro nível, o da rua principal, colocamos os acessos principais, abrigo de autos e serviços. O nível intermediário abriga toda a área social e de lazer da casa, salas integradas com piscina e espaço gourmet tem um acesso independente pela rua lateral neste nível os visuais são deslumbrantes para o entorno de mata. A área intima da casa está situada no pavimento superior de maneira a se desfrutar no solário da vista do entorno, do sol e dos ventos.
Dados da Obra:
Projeto: 2013;
Conclusão da Obra: 2013;
Área Construída: 497,00 m².
Ficha Técnica:
Autores: Frederico Zanelato, Regina Sesoko e Regina Santos.
Equipe Frederico Zanelato Arquitetos:
Colaboradores: Suzana Nagasawa e Flávio Coutinho. Estágiários: Guilherme Bravin, Paula Lopes e Rodrigo kodra.
Equipe Ar:Co – Arquitetura Cooperativa:
Colaboradores: Sergio Faraulo, Ana Tamie Deno e Camila Monteiro.
Fotógrafa: Bebete Viégas.

















