PROJETO DE ARQUITETURA E INTERIORES

Projeto de arquitetura e interiores para uma Residencia unifamiliar localizada na praia do Campeche em Florianópolis – SC

Dados da Obra: 

Projeto: 2017;

Obra: 2018;

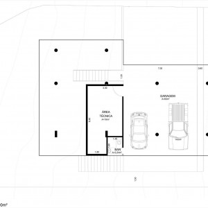
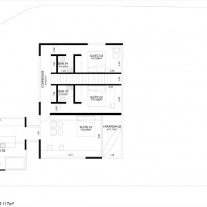
Área Construída: 336,00m².

Autores:

Frederico Zanelato e Sergio Faraulo.