PROJETO DE ARQUITETURA E INTERIORES

Projeto de Arquitetura e Interiores para uma Residencia unifamiliar localizada na cidade do Paço do Lumiar – MA.

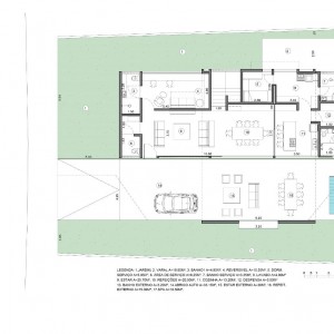
Para este projeto de uma casa em Paço do Lumiar no Maranhão escolhemos esta implantação em “L” de modo a obtermos uma melhor integração com o lote e aproveitamento das áreas externas.

O acesso principal se dá pela Praça de Boas-Vindas abrigada parte por um pergolado e parte pela projeção do pavimento superior. Abrigo para os carros, área de lazer e SPA abertos e integrados com os jardins circundantes criando a integração desejada.

No pavimento térreo, Lavabo, estar, refeições e cozinha, abrem-se e integram-se ao espaço da praça ampliando visualmente sua ocupação, um espaço reversível pose ser escritório, sala de TV ou suíte de hospedes equipado com banheiro grande e confortável. Área de serviço espaçosa, dormitório de serviço e banheiro se abrem para uma área de varal que recebe sol e ventos.

O pavimento superior é íntimo e comporta três suítes, um grande terraço acomoda bem um espaço aberto de estar e convívio. Duas suítes menores e uma maior com closet, banheiro e um terraço particular com deck e banheira externa.

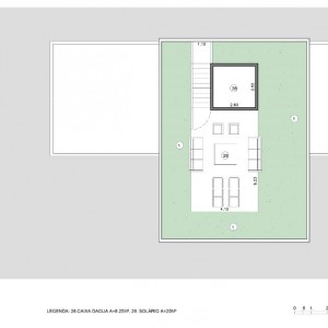
A cobertura laje jardim é o solário, espaço agradável e propicio para apreciar o céu.

Utilizamos materiais simples de maneira a proporcionar uma identidade única a casa pensamos na insolação e ventilação para que o conforto térmico seja o mais natural possível e que a integração com o lote seja harmoniosa e aconchegante.

 

Dados da Obra: 

Projeto: 2018;

Obra: Em andamento;

Área Construída: 293,26m².

Autores:

Frederico Zanelato e Sergio Faraulo.