PROJETO DE ARQUITETURA E INTERIORES
Projeto de arquitetura e interiores para uma Residência unifamiliar localizada na cidade de Mogi das Cruzes – SP.
Dados da Obra:
Projeto: 2014-2017;
Obra: Em andamento;
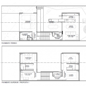
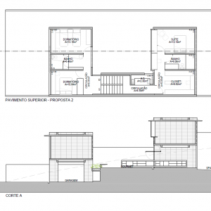
Área Construída: 270,00m².
Projeto Premiado: Prêmio ASBEA (Associação Brasileira de Escritórios de Arquitetura) 2014. Menção – Categoria Residências, Modalidade Projeto não Edificados.








